Stavební parcely - Staré Hodějovice
Price:
od price in agency
Description of the property:
Velmi lukrativní stavební parcely určené pro výstavbu rodinných domů.
Pozemky jsou situovány v klidové zóně s výhledem na město České
Budějovice.
Nově vzniklé ZTV se nachází v klidném a tichém místě v blízkosti
města Českých Budějovic. Pozemky jsou orientovány na západní stranu
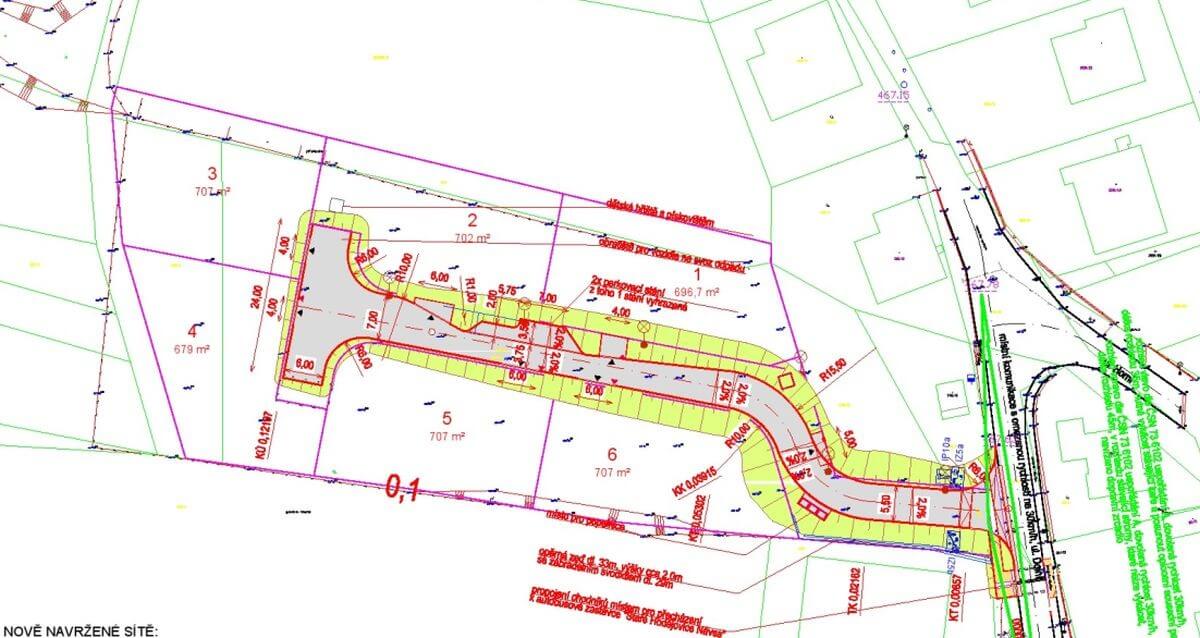
v mírně svahovitém terénu. Ve výstavbě ZTV vzniklo šest stavebních
parcel o rozloze 572 – 701 m². ZTV zahrnuje sítě vodovod, plynovod,
kanalizace, NN a zpevněné plochy. ZTV kolaudováno v roce 2020.
Lokalita:
- 5,7 km od centra náměstí města České Budějovice
- Západní dispozice s výhledem na České Budějovice
- Klidná lokalita
- Občanská vybavenost:
- Mateřská škola
- Sportovní areál
Type of property:
Projekt
No. of real est.:
00027
Operation:
Sale
Address:
Staré Hodějovice
Dolní
Dolní
The property has been sold
The location of the object:
Village center
PENB:
G - Extremely uneconomical
PENB type:
Decree n. 78/2013 Sb.
It shows the approximate location of the property, address:
Dolní, Staré Hodějovice, SO POÚ České Budějovice, SO ORP České Budějovice, okres České Budějovice














