Rodinný dům SH1 - Staré Hodějovice
Price:
price in agency
Description of the property:
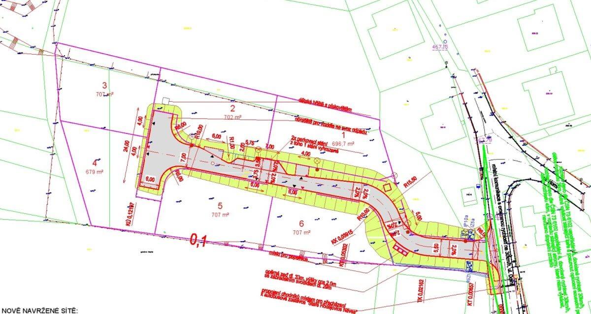
Velmi lukrativní stavební parcely s výstavbou domů na klíč. Pozemky
jsou situovány v klidové zóně s výhledem na město České Budějovice.
Situační dispozice západní. Na stavebních parcelách bude realizována
výstavba RD. K prodeji budou určeny parcely vč.RD.
Nově vznikající ZTV se nachází v klidném a tichém místě v blízkosti
města Českých Budějovic. Pozemky jsou orientovány na západní stranu
v mírně svahovitém terénu. Ve výstavbě ZTV vznikne šest stavebních
parcel o rozloze 572 – 701 m². ZTV zahrnuje sítě vodovod, plynovod,
kanalizace, NN a zpevněné plochy. Dokončení výstavby ZTV 10 /
2019. Zahájení výstavby RD 10/2024.
Lokalita:
- 5,7 km od centra náměstí města České Budějovice
- Západní dispozice s výhledem na České Budějovice
- Klidná lokalita
- Občanská vybavenost:
- Mateřská škola
- Sportovní areál
Type of property:
House, villa
No. of real est.:
00053
Operation:
Sale
Address:
Staré Hodějovice
The property has been sold
Flat number:
SH1
To move from:
31.5.2026
Land area:
701 m2
Land area:
701 m2
Usable area:
180 m2
Land area:
701 m2
Land area:
701 m2
State of the object:
under construction
Construction:
Bricked
The location of the object:
Village center
Information from a broker:
Výstavba rodinných domů klíč
PENB:
B - Velmi úsporná
PENB type:
Decree n. 78/2013 Sb.
It shows the approximate location of the property, address:
Staré Hodějovice, SO POÚ České Budějovice, SO ORP České Budějovice, okres České Budějovice



















